

Пожарный насос низкого давления CB10/60 отличается превосходной производительностью, высокой эффективностью, компактной конструкцией, эстетичным дизайном, простотой эксплуатации и обслуживания. Он подходит для пожарных автомобилей средней и большой грузоподъемности с водяными цистернами, автомобилей пенного тушения, пожарных башен и т.д.
Рыночная цена:
$2800Происхождение продукта:
ChinaВремя выполнения:
In stockМасса:
115 KGПожарный насос:
CB 10/60Расход насоса:
60 L/SРабочее давление:
1.0 MpaПожарный насос низкого давления CB10/60 отличается превосходной производительностью, высокой эффективностью, компактной конструкцией, эстетичным дизайном, простотой эксплуатации и обслуживания. Корпус насоса имеет направляющий аппарат, а рабочее колесо оснащено балансировочным кольцом и балансировочным отверстием, что значительно снижает осевые и радиальные нагрузки и увеличивает срок службы. Все эксплуатационные характеристики соответствуют стандарту GB6245-2006, а изделие прошло типовые испытания, проведенные Национальным центром по контролю качества и испытаниям противопожарного оборудования. Пожарный насос CB10/60 подходит для пожарных автомобилей средней и большой грузоподъемности с цистернами для воды, пожарных автомобилей с пеной, пожарных машин с водонапорными башнями и т. д.
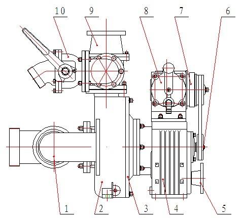
» Ⅰ. Конструкция пожарного насоса CB10/60:
|
1. Впускной трехходовой клапан; 2. Ракушка; 3. Задняя крышка; 4. Коробка передач; 5. Фланец соединительной муфты вала; 6. ременное колесо; 7. Электромагнитная муфта; 8. Поршневой насос подкачки топлива; 9. Обратный клапан; 10. Выходной шаровой кран |
» Ⅱ. Технические характеристики пожарной машины CB10/60:
|
Model |
Work condition |
Flow rate |
Outlet pressure |
Rated speed |
Power |
Suction depth |
|
(L/S) |
(Mpa) |
(r/min) |
(KW) |
(m) |
||
|
CB10/60 |
1 |
60 |
1 |
3200±50 |
102 |
3 |
|
2 |
42 |
1.3 |
3475±50 |
106 |
3 |
|
|
3 |
30 |
1 |
3130±50 |
73 |
7 |
|
|
| Working condition 1 | Working condition 2 |
» Ⅲ. CB10/60 fire pump component:
[if gte mso 9]>
|
Предметы |
Номер детали |
Имя |
|
1 |
ГБ276-82 |
Сборка насоса |
|
2 |
HSB-000 |
Узел поршневого насоса |
|
3 |
ЖФ80-000 |
Обратный клапан DN65 |
|
4 |
ГБ900-88 |
Шпилька М10×40 |
|
5 |
ГБ/Т11544-1997 |
A-type620Trangle Belt |
|
6 |
КБ10/30-000-001 |
Тюлень |
|
7 |
ГБ900-88 |
Шпилька М10×40 |
|
8 |
ГБ95-76 |
Плоская прокладка 10 |
|
9 |
ГБ93-87 |
Прокладка пружины 10 |
|
10 |
ГБ/Т6170-2000 |
Шестигранная гайка М10 |
|
11 |
ГБ95-76 |
Плоская прокладка10 |
|
12 |
ГБ93-87 |
Прокладка пружины10 |
|
13 |
ГБ/Т6170-2000 |
Шестигранная гайка M10 |
» Ⅵ. Области применения продукта:
|
|
| Пожарный насос CB10/60 установлен на шасси | Пожарный насос CB10/60 с задним креплением |
|
|
| Пожарная машина с насосом CB10/60 | Испытание пожарного насоса CB10/60 |
1.Мы можем поставлять CB10/20, CB10/30, CB10/40, CB10/60, CB10/80, CB10/100 и т. д.
2. Мы можем предложить вам пожарный насос, цена которого варьируется от 1800 до 20 000 долларов США.
3. Мы можем предложить вам 12-месячную гарантию.
Мы, POWERSTAR, также поставляем запасные части (оригинальные, OEM и сменные) для всех типов грузовиков и прицепов.
со скидкой и хорошим качеством, чтобы гарантировать хорошее рабочее состояние грузовиков и прицепов наших клиентов.